Fill out the form to download our brochure

Welcome to

PLOT 46

  • Sold
  • 4 bedrooms
  • 2 bathrooms
  • Move in this Spring/Summer
  • Double car barn
  • South facing garden
  • Parking for 3 cars
  • Large patio area

Discover a new way of living at Coppice Meadow

An exceptional four-bedroom detached home offering versatile living space ideal for modern family life. The open-plan kitchen and dining area is beautifully appointed with high-spec appliances and leads into a separate utility room for added convenience. A spacious living room provides a relaxing retreat, while a dedicated study is perfect for working from home or quiet focus.

Upstairs, the principal bedroom features a stylish en suite and fitted wardrobes, with bedroom two also benefitting from built-in storage for a streamlined finish.

This home also enjoys a generous south-facing garden, a double car barn for private parking, and the comfort and reassurance of a 10-year new build warranty.

GROUND FLOOR

ROOM

DIMENSIONS


Kitchen

3.86m x 3.52m

Dining Area

4.22m x 3.86m

Living Room

5.29m x 3.86m

Study

3.86m x 2.36m

PLOT 12 & 46 DIFFERENT LAYOUT

ROOM

DIMENSIONS


Total Internal Living Area: No.12 & No.44

168.2 sq m

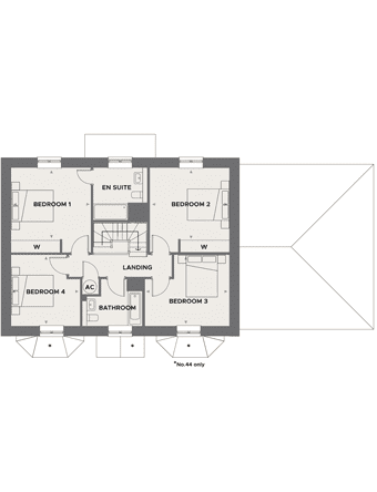
FIRST FLOOR

ROOM

DIMENSIONS


Bedroom 1

3.91m x 3.50m

Bedroom 2

3.89m x 3.49m

Bedroom 3

4.14m x 3.49m

Bedroom 4

3.49m x 3.38m

ROOM

DIMENSIONS


Kitchen

3.86m x 3.52m

Dining Area

4.22m x 3.86m

Living Room

5.29m x 3.86m

Study

3.86m x 2.36m

ROOM

DIMENSIONS


Total Internal Living Area: No.12 & No.44

168.2 sq m

ROOM

DIMENSIONS


Bedroom 1

3.91m x 3.50m

Bedroom 2

3.89m x 3.49m

Bedroom 3

4.14m x 3.49m

Bedroom 4

3.49m x 3.38m

Find out more about our incentives

What’s included

Icon of a tap head with flowing water

Quooker tap

Icon of a washing machine

Integrated appliances & wine cooler

Icon of a air-conditioning unit

Air Source heat pump

Icon of a tile with heat coming off of it, representing a heated floor

Underfloor heating to ground floor

Specifications

Kitchen & utility

  • Shaker style kitchen
  • Quartz worktops and splash backs
  • Electric, stainless steel single oven with additional combi oven
  • 5 burner induction hob and extractor cooker hood
  • Integrated fridge/freezer
  • Integrated dishwasher
  • Stainless steel 1 1/2 bowl sink
  • Quooker, 3 way tap for boiling, warm and cold water
  • Integrated wine fridge
  • Amtico flooring

Bathroom & En-suite

  • Modern styled bathrooms and en suites with chrome fixings and Roca sanitary ware
  • Vanity unit basin* with chrome mixer taps
  • Toilets with soft-close seats
  • Chrome shower head with slide rail
  • Clear glass sliding door shower screen and glass bath shower screen
  • Heated chrome towel rails (size dependent on layout)
  • Ceramic wall tiles on selected areas, edges trimmed with brushed chrome strip
  • Shaver socket
  • Amtico flooring

Media & Connectivity

  • Prewired for Sky Q service in the living room
  • TV points in all bedrooms and studies
  • Telephone points in living room, hallway and master bedroom
  • USB charger points incorporated in sockets within kitchen, living room, study and master bedroom

Heating, Electrical & Lighting

  • Energy efficient Air Source Heat Pump system with mains pressure hot water system and central programmer
  • Underfloor heating to ground floor
  • Radiators to first floor
  • LED down lights in kitchen, utility, all bathrooms, en suites and cloakrooms
  • Pendant lighting in all other rooms
  • External lights for all external doors
  • External weatherproof power socket
  • Facility for future wireless alarm systems
  • Carbon monoxide detector

Finishing Details

  • Modern style painted internal doors with chrome finish door furniture
  • Carpeted, closed-tread, painted staircase with oak hand rail and spindles
  • Painted, three stepped architrave and skirting boards
  • Fitted wardrobes where shown in floor plans
  • Carpets to all principal rooms unless otherwise specified

External

  • Electrical vehicle charging point
  • Cycle store to selected houses only
  • Turf in the rear garden
  • Close board fencing around gardens
  • External water tap
  • Double Car Barn

Image 1/6

Image 2/6

Image 3/6

Image 4/6

Image 5/6

Image 6/6

Are you interested in Plot 46 at Coppice Meadow, but have some questions?

Book a viewing today